Ljus, rymd och mörk ek i Paul Reys badrum

Mitt bland de skånska rapsfälten, strax utanför Lund, har artisten och låtskrivaren Paul Rey och hans fru Dalia skapat ett hem för familjen. Huset, en enplansvilla som de köpte 2023, fångade deras intresse tack vare den grönskande omgivningen, närheten till staden och möjligheten att forma något eget. Med en totalrenovering av husets insida växte ett hem fram i jordnära toner, med lugna uttryck och en harmonisk känsla – en stillsam plats där familjen kan samlas och spendera tid tillsammans.

Även badrummet blev en viktig del av förvandlingen. Med ljus och luftig känsla, beige toner och mörka träinslag som skapar kontrast har familjen format ett badrum som känns både tidlöst och personligt. Välkommen in för att läsa mer om materialvalen, planlösningen och detaljerna som sätter känslan.

Paul Rey.

Med kommoden Core Nema i Dark Oak får badrummet en varm kontrast mot de ljusa tonerna.

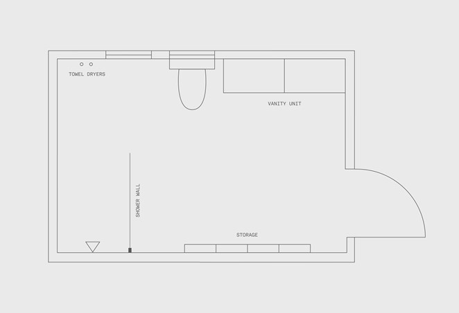
När familjen tog över huset var badrummet uppdelat i två delar. I den främre delen låg själva badrummet, medan en avskiljande vägg dolde tvättstugan och ett av rummets fönster. Genom att flytta tvättstugan till en annan del av huset och ta ner väggen öppnade de upp för ett större badrum med ett friare flöde av naturligt ljus och plats för en rymlig duschhörna. Beige kakel på väggar och golv skapar en lugn bas i rummet. Längs duschens bakre vägg löper en belyst nisch, och intill duschen placerades handdukstorkarna Line. 

Duschväggen Arc 20 Frame XL, som sträcker sig från golv till tak blir badrummets självklara blickfång.

Duschväggen installerades innan badrummet kaklades, vilket gav ett sömlöst uttryck. 

Handdukstorken Line tillför både funktion och ett stilrent uttryck intill duschen.

Till duschlösningen valde Paul och Dalia 8 mm klarglas och hade tidigt en tydlig vision om ett så sömlöst uttryck som möjligt. Duschväggen Arc skulle sträcka sig från golv till tak, utan synliga beslag, för att bevara känslan av ljus och rymd. För att få till det uttrycket monterades duschväggen på plats innan badrummet kaklades.

”Det var verkligen en lösning som byggde på bra samarbete med skickliga och pålitliga hantverkare, men vi är väldigt glada att vi vågade följa vår vision. Resultatet blev precis så bra som vi hade hoppats.”

Core Nema i Dark Oak kombineras här med ett specialbyggt tvättställ i Dekton Taga.

Det integrerade greppet förstärker Core Nemas avskalade uttryck.

I den främre delen av badrummet tar dubbla kommoden Core Nema plats tillsammans med en stor måttbeställd spegel. Valet av Dark Oak tillför ett naturligt material som skapar fin kontrast mot rummets ljusa och beige toner. Dubbla handfat var en självklar del av planeringen, och för att få det uttryck som de önskade valde familjen ett specialbyggt tvättställ. För att få gott om förvaring valde de även en rad väggskåp Nema i Dark Oak, som rymmer vardagens alla saker och samtidigt leder blicken mot den stora duschen.

Väggskåpen i Dark Oak leder blicken vidare genom badrummet.

Väggskåpet Nema rymmer allt som behövs för hudvård, hårvård och vardagsrutiner. 

Resultatet är ett badrum där hemmets ljusa och harmoniska uttryck får leva vidare genom naturmaterial, lugna toner och genomtänkta lösningar. Ett rum där ljuset flödar in från fönstren och bjuder in den grönskande naturen utanför. Paul och Dalia beskriver sitt nya badrum som sin egen spa-avdelning – en plats att stiga in i för att koppla bort, slappna av och återhämta sig.

Planritning för familjens badrum på 9,5 kvm.

Relaterat

Astrid Marie Vie

Kika in i ett hem inspirerat av japandi– med varm minimalism, ek i alla rum och en neutral färgskala som andas lugn.

Se mer

Fors Kraftstation

Inspireras av ett badrum där skandinavisk stillhet möter hundraårig industrikänsla. 

Se mer

Mood Hay

En elegant palett där mörk ek möter kalksten och varma bronstoner. Utforska detta Mood och låt det ligga till grund för ditt nya badrum.

Se mer