Skräddarsydd duschlösning

På INR har vi designat och konstruerat skräddarsydda duschlösningar i 35 år och vi sätter stolthet i att kunna erbjuda dig en helt unik lösning – skapad på millimetern för just ditt badrum. Våra duschlösningar ritas och konstrueras på vår designavdelning i nära samarbete med våra återförsäljare som i sin tur håller i kontakten med dig. Efter godkänd ritning bygger vi din unika  duschlösning i vår duschverkstad i Malmö.

Vi skiljer på tre typer av anpassningar: Måttanpassad duschlösning, Skräddarsydd duschlösning och Snedkapad duschlösning. Scrolla ner för att läsa om var och en. Nederst på sidan hittar du våra måttagningsmanualer samt exempelritningar.

Måttanpassade duschlösningar

De flesta av våra duschmodeller kan anpassas i bredd och ibland i höjd. Denna anpassning ingår som regel i grundpriset och du kan göra den på egen hand i vår duschverkstad. Ta med det färdiga underlaget till närmaste återförsäljare för att lägga din beställning.

Kom igång och skapa

Ajdå!

Här finns innehåll som kräver att du accepterar våra cookies.

Skräddarsydda duschlösningar

Den skräddarsydda duschlösningen anpassas efter just ditt badrums unika förutsättningar. Vid den här typen av lösning tar vi fram ett kostnadsfritt ritningsunderlag som du godkänner före produktion. Börja med en enkel skiss som du tar med till din återförsäljare. Produktionstiden efter godkänd ritning är tre till fyra arbetsveckor.

Hitta återförsäljare

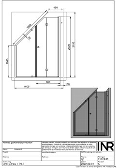
Snedkapade duschlösningar

Många av våra ordinarie duschmodeller i serierna Arc och Linc kan anpassas efter snedtak. Vid den här typen av lösning tar vi fram ett kostnadsfritt  ritningsunderlag som du godkänner före produktion. Börja med en enkel skiss som du tar med till din återförsäljare. Produktionstiden efter godkänd ritning är tre till fyra arbetsveckor.

Duschväggar

Så mäter du upp ett utrymme med snedtak

Mät upp duschutrymmet noggrant (alltid efter att eventuellt kakel är satt) och ta med måtten till din återförsäljare. Inom ett par dagar får du ett ritningsförslag som vår CAD-avdelning tagit fram, kostnadsfritt. Produktionstiden efter godkänd ritning är tre till fyra arbetsveckor.

Använd gärna vår måttagningsmanual för nisch med snedtak vänster eller höger.

Snedtak vänster

Snedtak höger

 

Relaterade sidor

Översikt glas till våra duschlösningar.

Härdat säkerhetsglas

Alla våra duschväggar är CE-märkta och glasen tillverkas av termiskt härdat säkerhetsglas för din trygghet. 

Se mer
Duschvägg Edge i Stone.

Duschserier

Lär känna våra duschar i 4 serier med olika tjocklek på glas och med olika valmöjligheter. De flesta av våra duschar har kostnadsfri måttanpassning oavsett serie.

Se mer
Grand Grip får sitt harmoniska och balanserade uttryck tack vare det elegant infrästa greppet.

INR

Svensktillverkade duschlösningar och badrumsinredning i skandinavisk design som skapar förutsättningar för ett njutningsfullt och personligt badrum på ditt sätt.

Se mer